Is er een UFO geland? Deze uitvoering is opgebouwd uit S-modules met twee zijvleugels en doet nog het meest denken aan een UFO! De drie slaapkamers bieden voldoende comfortabel woonruimte voor een groter gezin van zes personen, terwijl twee gasten op de slaapbank kunnen overnachten. Elke slaapkamer beschikt over een volledig glazen wand, wat het interieur ruimer doet aanvoelen én de natuur dichterbij brengt. In deze compacte woning van 45 m² is ook ruimte voor een mini-keuken, een doucheruimte en een technische ruimte. Iedereen komt samen aan de eettafel in het hart van de woning, waar een grote schuifpui toegang geeft tot het terras.
*Foto toont woning met individuele aanpassingen.

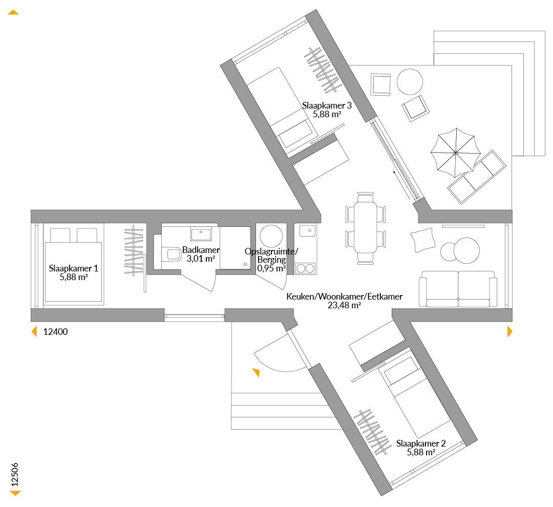
Floor plans
Complete plan of all floors with area






Friends and family think it’s a beautiful house. We’re very lucky to have such a beautiful home to share with our grandchildren and family. Yes, it’s our forever home, definitely.