Smal en toch ruim: deze elegante NEXT Holiday woning met natuurlijk gekleurde gevelbekleding van leien is bijna 36 m² groot. Ze is opgebouwd uit smalle S-modules, maar dankzij de aangebouwde zijvleugel is er toch plaats voor een tweede slaapkamer. Die vleugel zorgt bovendien voor extra ruimte in de leefzone tussen de twee modules, en is ideaal voor gezellige familiemomenten. Grote, glazen ramen bieden prachtig uitzicht in alle vier windrichtingen, terwijl een beschut terras extra buitenruimte toevoegt aan het woongenot.
*Foto toont woning met individuele aanpassingen.

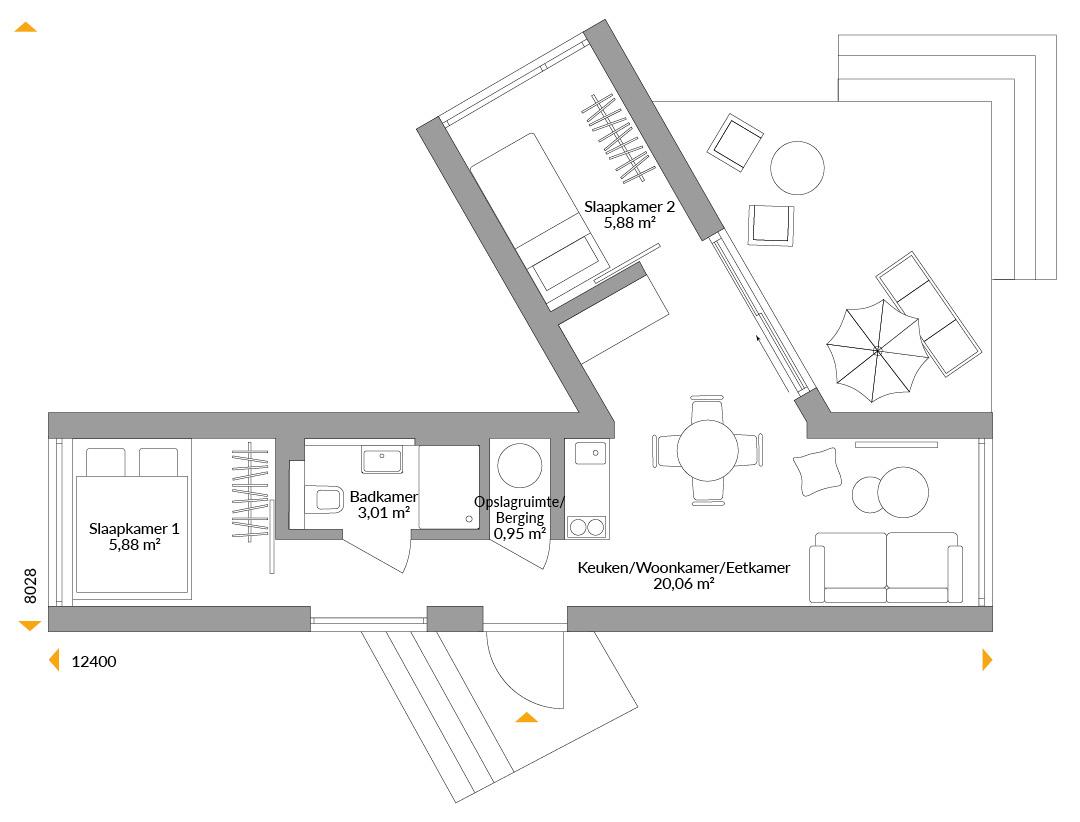
Floor plans
Complete plan of all floors with area






Friends and family think it’s a beautiful house. We’re very lucky to have such a beautiful home to share with our grandchildren and family. Yes, it’s our forever home, definitely.