Groter gezelschap? Het mooie van modulaire woningen is dat je extra kamers kunt toevoegen als dat nodig is – bijvoorbeeld een tweede slaapkamer en een grote kledingkast – want met vier personen, of zelfs maximaal zes, heb je nu eenmaal wat meer leef- en opbergruimte nodig. En ondanks de smalle S-modules is er nog steeds ruimte voor een grote tafel waar je samen kunt eten en spelletjes spelen. De toevoeging van de zijvleugel zorgt bovendien voor een windbeschut terras - een vaste plek, net zo comfortabel als een serre.
*Foto toont woning met individuele aanpassingen.

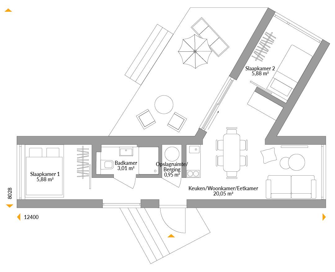
Floor plans
Complete plan of all floors with area






Friends and family think it’s a beautiful house. We’re very lucky to have such a beautiful home to share with our grandchildren and family. Yes, it’s our forever home, definitely.