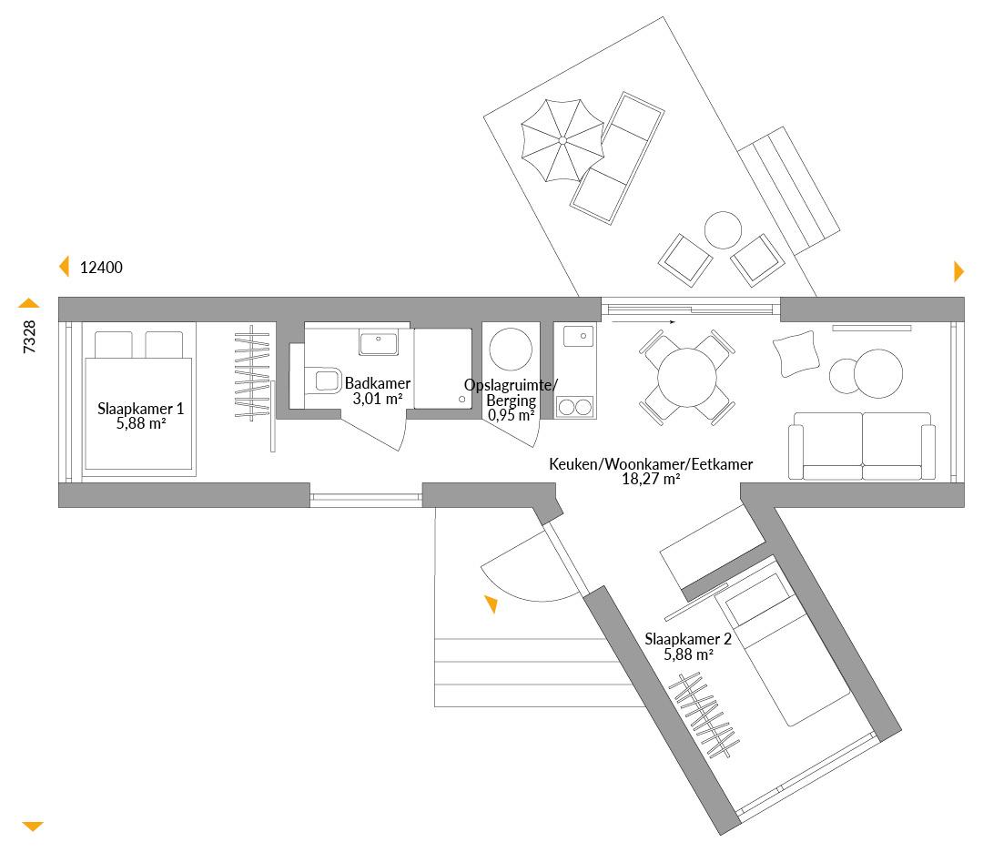
Voeg extra modules toe: Als het perceel ruimte biedt voor een iets bredere woning – in dit geval ruim 7 meter – kan een extra smalle S-module je vakantiehuis nóg comfortabeler maken. Door een zijvleugel toe te voegen ontstaat er een extra slaapkamer en een uitnodigende entree, wat 11 m² extra woonoppervlakte oplevert ten opzichte van de NEXT Holiday 23 S-1. Panoramische glaswanden zorgen voor het gevoel dat je midden in de natuur zit!
*Foto toont woning met individuele aanpassingen

Floor plans
Complete plan of all floors with area






Friends and family think it’s a beautiful house. We’re very lucky to have such a beautiful home to share with our grandchildren and family. Yes, it’s our forever home, definitely.