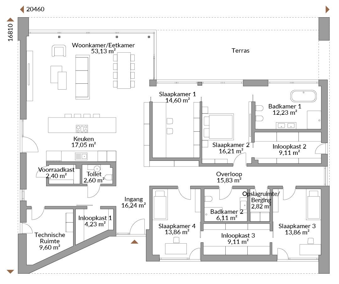
Prachtig wonen op de begane grond
Deze mooie bungalow biedt 220 vierkante meter wonen op één niveau, met kamerhoge ramen voor fantastisch daglicht en transparantie. De architectuur kenmerkt zich door grote gevelpanelen en een overdekt terras, wat zorgt voor een duidelijk en strak ontwerp.
*Foto toont woning met individuele aanpassingen.

Floor plans
Complete plan of all floors with area






Friends and family think it’s a beautiful house. We’re very lucky to have such a beautiful home to share with our grandchildren and family. Yes, it’s our forever home, definitely.