Luxe bungalow
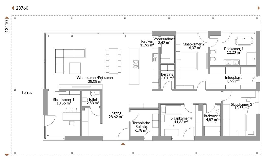
Een ruime bungalow in loftstijl met bijna de helft van de wanden van glas - dat is pure luxe! Een prachtige combinatie van een ruimtelijk interieur, terwijl je toch dicht bij de natuur woont. De entree verwelkomt je met een royale hal, waar een nis is met een gastentoilet en een plek om jassen, laarzen en schoenen op te bergen.
*Foto toont woning met individuele aanpassingen.

Floor plans
Complete plan of all floors with area






Friends and family think it’s a beautiful house. We’re very lucky to have such a beautiful home to share with our grandchildren and family. Yes, it’s our forever home, definitely.