Minimalistische elegantie
Paradijs op één niveau: compact en ruim, transparant en privé, traditioneel en modern. En zeker een blikvanger.
*Foto toont woning met individuele aanpassingen.

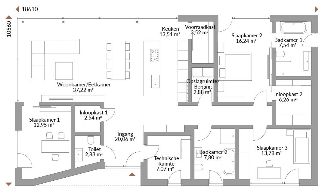
Floor plans
Complete plan of all floors with area






Friends and family think it’s a beautiful house. We’re very lucky to have such a beautiful home to share with our grandchildren and family. Yes, it’s our forever home, definitely.