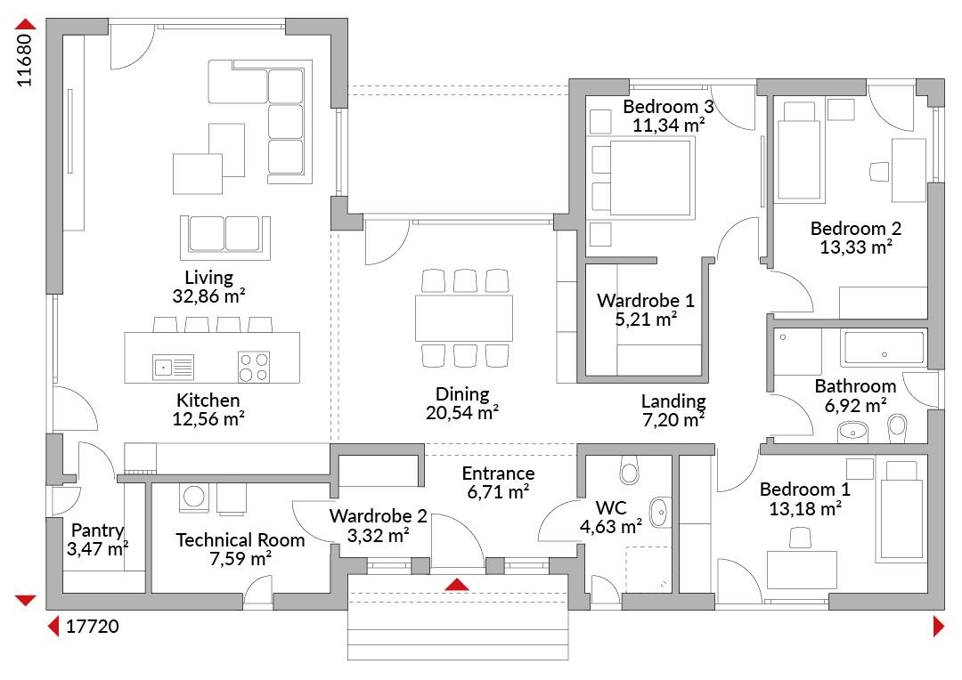
Three-bedroom L-shaped bungalow with integrated canopy over elevated front door with side glass panels. Master bedroom with en-suite bathroom featuring freestanding bathtub, double washbasin and shower. Two separate cloakrooms, one usable as a walk-in wardrobe area. Raised living area with corner glazing and taller windows, designed as open-plan kitchen, living and dining space with sliding doors to the terrace. Pantry, guest bathroom with shower, technical room, entrance area and hallway. Hipped roof with wide eaves (60 cm) and 22° pitch, including terrace canopy.
*Photo shows building with individual changes.

Floor plans
Complete plan of all floors with area





Welkom bij S-Line van Danwood - het volgende niveau in kwaliteit en zelfbouwdesign. Deze exclusieve lijn onderscheidt zich niet alleen door haar unieke architectuur, maar ook door een doordacht functioneel ontwerp dat comfort en gebruiksgemak biedt in elke ruimte. Elke woning binnen de S-Line wordt gekenmerkt door een aantal bijzondere elementen die zorgen voor een luxueuze woonervaring.

Friends and family think it’s a beautiful house. We’re very lucky to have such a beautiful home to share with our grandchildren and family. Yes, it’s our forever home, definitely.