Overspoeld met licht en dicht bij de natuur
Dankzij de vele glaspartijen in de bekroonde Vision 195 NL kun je vanuit je bed naar de sterren kijken, glimlachen naar de ochtendzon aan het ontbijteiland en genieten van een onbelemmerd uitzicht aan de eettafel. Licht en zon komen van alle kanten, waardoor elke ruimte helder en uitnodigend is.
*Foto toont woning met individuele aanpassingen

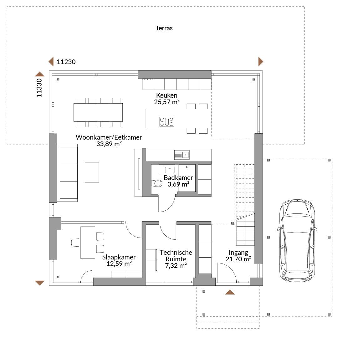
Floor plans
Complete plan of all floors with area

Friends and family think it’s a beautiful house. We’re very lucky to have such a beautiful home to share with our grandchildren and family. Yes, it’s our forever home, definitely.