Two-storey house with entrance canopy on the higher front door and corner bay window; entrance with staircase; open-plan living/dining area with floor-to-ceiling glazing and sliding doors to the terrace; kitchen with peninsula hob; technical room; WC; master bedroom with walk-in wardrobe/dressing area and en-suite bathroom; open landing; two single bedrooms with walk-in wardrobe areas; study/office; family bathroom with storage; hipped roof with wide eaves of 60cms; hipped roof with 22° roof pitch.
*Photo shows building with individual changes.

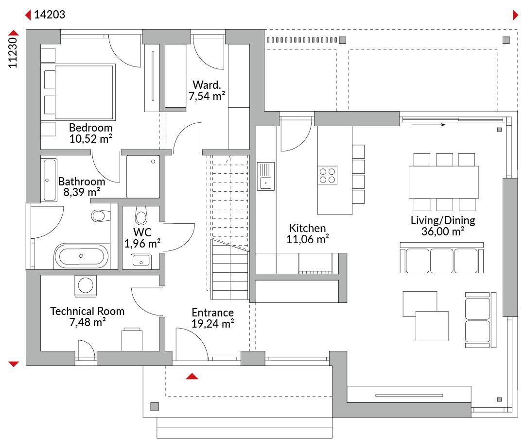
Floor plans
Complete plan of all floors with area
Welkom bij S-Line van Danwood - het volgende niveau in kwaliteit en zelfbouwdesign. Deze exclusieve lijn onderscheidt zich niet alleen door haar unieke architectuur, maar ook door een doordacht functioneel ontwerp dat comfort en gebruiksgemak biedt in elke ruimte. Elke woning binnen de S-Line wordt gekenmerkt door een aantal bijzondere elementen die zorgen voor een luxueuze woonervaring.

Friends and family think it’s a beautiful house. We’re very lucky to have such a beautiful home to share with our grandchildren and family. Yes, it’s our forever home, definitely.