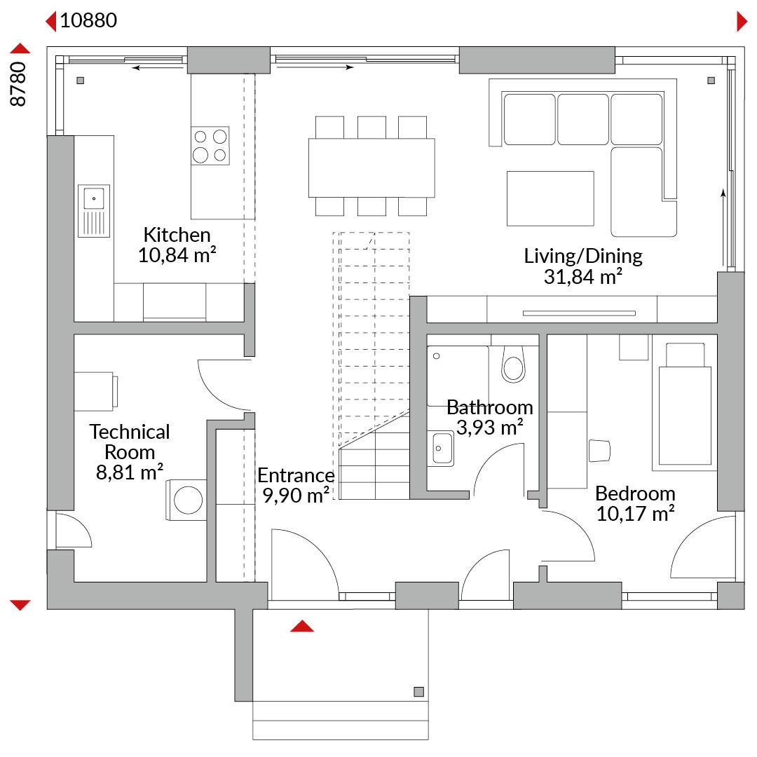
Two-storey house with entrance canopy over elevated front door and three bedrooms on the upper floor plus spacious hallway. Master bedroom with en-suite bathroom including freestanding bathtub, double vanity unit and shower. Second bathroom with bathtub, shower and double vanity unit. Raised ground floor with corner glazing in living/dining area and kitchen, and taller windows, designed as open-plan kitchen/living/dining area with sliding doors to the terrace. Additional room with private guest WC and shower, technical room and entrance hall. Hipped roof with wide eaves (80 cm), 22° pitch.
*Photo shows building with individual changes.

Floor plans
Complete plan of all floors with area
Welkom bij S-Line van Danwood - het volgende niveau in kwaliteit en zelfbouwdesign. Deze exclusieve lijn onderscheidt zich niet alleen door haar unieke architectuur, maar ook door een doordacht functioneel ontwerp dat comfort en gebruiksgemak biedt in elke ruimte. Elke woning binnen de S-Line wordt gekenmerkt door een aantal bijzondere elementen die zorgen voor een luxueuze woonervaring.

Friends and family think it’s a beautiful house. We’re very lucky to have such a beautiful home to share with our grandchildren and family. Yes, it’s our forever home, definitely.