Zo eenvoudig, zo mooi
De Vision 227 is een woning als geen ander. Ondanks de traditionele vorm met een zadeldak oogt het alsof ze uit één mal is gegoten: geen dakoverstek, geen uitstekende elementen. In plaats daarvan zijn er verrassende details en architectonische accenten die meteen de aandacht trekken.
*Foto toont woning met individuele aanpassingen.

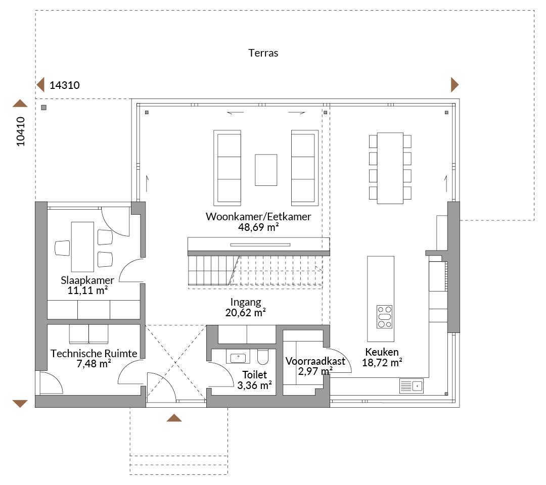
Floor plans
Complete plan of all floors with area






Friends and family think it’s a beautiful house. We’re very lucky to have such a beautiful home to share with our grandchildren and family. Yes, it’s our forever home, definitely.