Glas en licht
Met zijn karakteristieke glazen gevel en dak voelt het alsof je de boomtoppen, wolken en sterren bijna kunt aanraken in deze schitterende Vision 207 NL. Alleen al de trap naar de bovenverdieping is een beleving op zich.
De glazen gevel en het glazen dak vormen samen een ‘doos van glas en licht’ aan het einde van een prachtige trap, en creëren zo een uniek gevoel van ruimte.
*Foto toont woning met individuele aanpassingen.

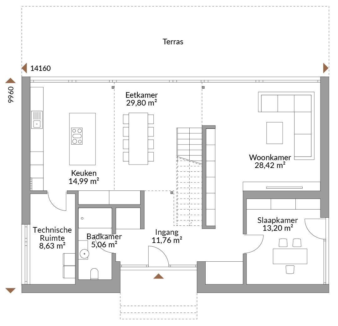
Floor plans
Complete plan of all floors with area






Friends and family think it’s a beautiful house. We’re very lucky to have such a beautiful home to share with our grandchildren and family. Yes, it’s our forever home, definitely.