Minimalisme ontmoet luxe
Vision 172 NL belichaamt verfijnde architectuur. Strakke lijnen, een zadeldak en royale glaspartijen vormen een naadloos geheel dat pure elegantie uitstraalt. Ontworpen voor wie waarde hecht aan stijl en comfort, maakt deze woning van eenvoud een premium woonervaring.
*Foto toont woning met individuele aanpassingen.

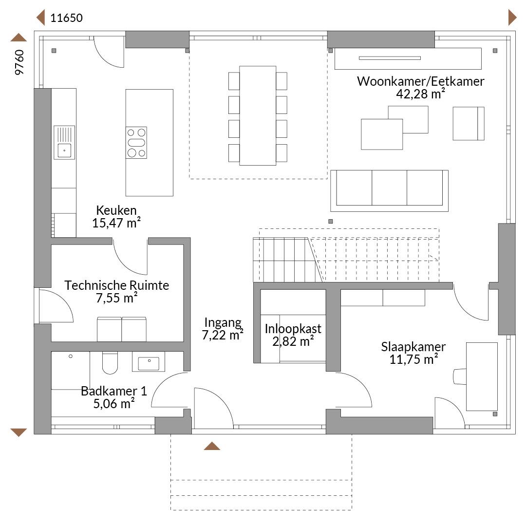
Floor plans
Complete plan of all floors with area






Friends and family think it’s a beautiful house. We’re very lucky to have such a beautiful home to share with our grandchildren and family. Yes, it’s our forever home, definitely.