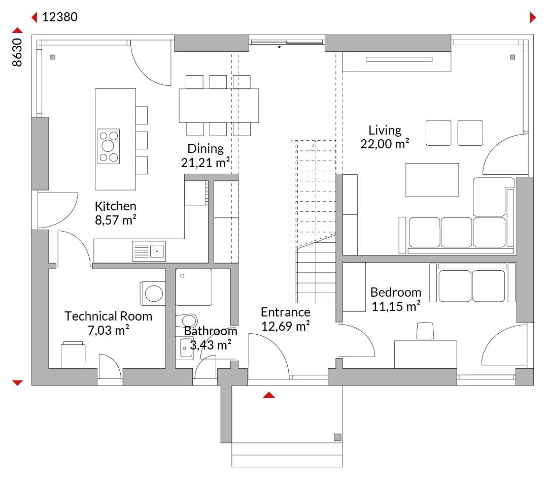
One-and-a-half-storey house with covered entrance over elevated front door. Raised ground floor with taller windows in the dining area, designed as open-plan kitchen connected to the adjacent living/dining space with corner glazing in the dining area and living room, plus sliding doors to the terrace and garden. Separate study suitable for guests or use as a home office, guest WC. Three bedrooms, two with walk-in wardrobe areas. One bedroom with en-suite bathroom and walk-in wardrobe area. Additional shower room and storage room. Technical room, entrance hall and hallway. Gable roof with wide eaves (60 cm), 25° pitch. Knee wall height: 2.00 m.
*Photo shows building with individual changes.

Floor plans
Complete plan of all floors with area
Welkom bij S-Line van Danwood - het volgende niveau in kwaliteit en zelfbouwdesign. Deze exclusieve lijn onderscheidt zich niet alleen door haar unieke architectuur, maar ook door een doordacht functioneel ontwerp dat comfort en gebruiksgemak biedt in elke ruimte. Elke woning binnen de S-Line wordt gekenmerkt door een aantal bijzondere elementen die zorgen voor een luxueuze woonervaring.

Friends and family think it’s a beautiful house. We’re very lucky to have such a beautiful home to share with our grandchildren and family. Yes, it’s our forever home, definitely.