One-and-a-half-storey house with entrance canopy over elevated front door and two bedrooms on the upper floor. Master bedroom with large walk-in wardrobe area. Raised ground floor with corner glazing and taller windows, designed as open-plan kitchen/living/dining area with sliding doors to the terrace. Guest WC with shower, bathroom with bathtub, shower and double vanity unit, technical room, entrance hall and hallway. Gable roof with wide eaves (60 cm), 40° pitch. Knee wall height: 1.00 m.
*Photo shows building with individual changes.

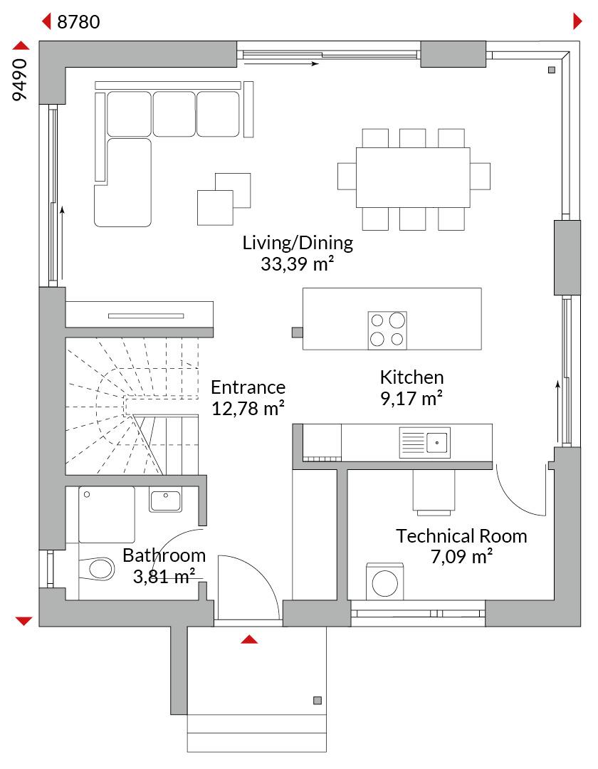
Floor plans
Complete plan of all floors with area
Welkom bij S-Line van Danwood - het volgende niveau in kwaliteit en zelfbouwdesign. Deze exclusieve lijn onderscheidt zich niet alleen door haar unieke architectuur, maar ook door een doordacht functioneel ontwerp dat comfort en gebruiksgemak biedt in elke ruimte. Elke woning binnen de S-Line wordt gekenmerkt door een aantal bijzondere elementen die zorgen voor een luxueuze woonervaring.

Friends and family think it’s a beautiful house. We’re very lucky to have such a beautiful home to share with our grandchildren and family. Yes, it’s our forever home, definitely.